Croisière sur le Nil
Dahabeyas francophones entre Louxor et Assouan

 

L’Egypte au fil du Nil, en dahabeya

Vivez une expérience immersive, alliant détente et culture, grâce à nos circuits comprenant navigation en dahabeya et découverte des plus beaux trésors de l’Egypte.

Naviguer sur le Nil, c’est plonger dans cinq mille ans d’histoire au fil d’un fleuve éternel. Nos croisières francophones à bord de dahabeyas traditionnelles offrent une expérience unique : rythme lent, confort raffiné, équipage attentionné et découverte des sites les plus emblématiques de l’Égypte ancienne. Conçues pour les amoureux de culture, de nature et d’authenticité, ces croisières Samcea mêlent élégance, immersion et sérénité, loin des grands bateaux touristiques.

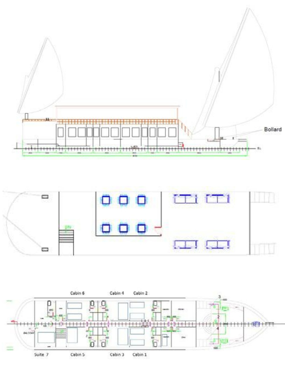
La dahabeya est un moyen intimiste de visiter la Haute Egypte. Ce sont des navires de petite capacité. Sans moteur, (à la voile ou tiré par une gabare « petit remorqueur »), ils s’appuient sur les courants de la rivière pour naviguer sur le Nil, évitant ainsi toute trépidation. Leur taille permet un accostage partout, sur des petites îles isolées.

 

 

 

Origine et définition

Une dahabeya (ou dahabiya) est un type de bateau traditionnel à voile utilisé pour naviguer sur le Nil, qui a été remis au goût du jour pour offrir des croisières haut de gamme, intimistes et respectueuses de l’environnement.

Le mot dahabeya vient de l’arabe "dhahabiya" qui signifie "dorée", en référence aux bateaux décorés d’or utilisés autrefois par la noblesse égyptienne et les voyageurs européens au XIXe siècle. Ces embarcations élégantes étaient à l'époque le moyen privilégié pour explorer la Haute-Égypte avant l’apparition des grands bateaux à moteur.

Une croisière en dahabeya, c’est voyager comme les anciens explorateurs, dans une ambiance feutrée, élégante et privilégiée. C’est prendre le temps d’admirer le Nil, de découvrir les trésors de l’Égypte antique, et de vivre un moment de calme, loin du tourisme de masse.

 

 

 

Une croisière plus responsable

  • Sans vibrations ni pollution sonore, car la navigation à la voile est privilégiée

  • Plus respectueuse de l’environnement que les grands bateaux de croisière

  • Favorise l’économie locale avec des repas préparés à base de produits locaux, des visites de villages, et un équipage égyptien à bord

  • Atmosphère conviviale et sereine, idéale pour les couples, petits groupes, familles ou voyageurs en quête d’authenticité

 

 

 

 

 

Caractéristiques principales

  • Voilier traditionnel : une dahabeya navigue avec deux grandes voiles latines, sans moteur principal. Quand il n’y a pas de vent, elle peut être tractée par un petit remorqueur discret.

  • Taille humaine : entre 6 et 18 cabines, soit une capacité maximale de 14 à 36 personnes, ce qui garantit une ambiance paisible, loin des croisières de masse.

  • Navigation douce : le bateau glisse lentement sur le Nil, offrant un rythme apaisant et des vues magnifiques sur les rives, les villages, les palmeraies et les temples antiques.

  • Confort moderne : bien qu’inspirée du passé, une dahabeya propose un confort contemporain : cabines avec salle de bain privée, climatisation, salons, jacuzzi, restaurant climatisé, etc.

  • Accostage flexible : contrairement aux grands bateaux, une dahabeya peut s’arrêter sur de petites îles, loin des quais touristiques, pour des nuits en pleine nature ou des baignades dans le Nil.

 

Nos Croisières en Dahabeya

Partez pour un voyage d’exception au fil du Nil à bord de nos dahabeyas francophones, des bateaux traditionnels à voile alliant charme, confort et authenticité.

Chaque croisière propose un itinéraire soigneusement conçu entre Louxor et Assouan, ponctué de visites incontournables et d’expériences locales : cours de cuisine, soirées nubiennes, baignades dans le Nil ou dîners d’adieu sous les étoiles.

Naviguer sur le Nil, c’est s’offrir une expérience unique au monde, à la fois culturelle, spirituelle et profondément humaine. Entre Louxor et Assouan, le fleuve déroule un décor millénaire où se succèdent temples majestueux, villages nubiens et rives baignées d’une lumière dorée. Chaque croisière Samcea sur le Nil est pensée comme une parenthèse hors du temps : un voyage en douceur, porté par le vent, à bord de dahabeyas francophones mariant élégance orientale et confort moderne.

 

Nos bateaux, à taille humaine, ne transportent qu’un nombre limité de passagers, favorisant la convivialité et la sérénité. Loin des grands navires de tourisme, ces dahabeyas glissent silencieusement au fil de l’eau, invitant à la contemplation et à la découverte. Le rythme de navigation est lent, harmonieux, laissant le temps d’admirer le lever du soleil sur les rives verdoyantes, d’échanger avec l’équipage, ou simplement de savourer un thé à la menthe sur le pont pendant que défilent les palmiers et les felouques.

Chaque itinéraire combine les sites les plus emblématiques d’Égypte — la Vallée des Rois, le temple d’Hatchepsout, Edfou, Kom Ombo, Philae ou Abou Simbel — avec des haltes authentiques où le voyageur plonge dans la vie locale. Les repas sont préparés à bord à partir de produits frais, la cuisine mêle saveurs orientales et inspirations méditerranéennes, et les soirées se prolongent sous les étoiles, rythmées par la musique nubienne ou une simple conversation entre voyageurs.

Nos croisières sur le Nil sont accompagnées par des guides francophones égyptologues, véritables passeurs d’histoire, et bénéficient d’un service soigné assuré par un équipage expérimenté. Que vous choisissiez la majestueuse Sekhmet, la contemporaine Papyrus, la conviviale Yalla Bina ou la légendaire Saray El Nil, chaque bateau offre sa personnalité, son ambiance et sa promesse d’évasion.

Pour prolonger votre découverte, des extensions au Caire ou des séjours balnéaires à Hurghada peuvent être ajoutés à votre itinéraire. Parce qu’un voyage en Égypte est bien plus qu’une destination : c’est une rencontre avec le temps, la lumière et la mémoire du monde.

 

Nos croisières sont disponibles avec ou sans vols au départ de Paris, Lyon et Nantes, avec possibilité d’extensions au Caire ou à Hurghada.

 

Les dahabeyas disponibles :

  • Dahabeya Sekhmet – 8 jours Louxor à Louxor

  • Dahabeya Papyrus – 8 jours Louxor à Louxor

  • Dahabeya Yalla Bina – 6 ou 8 jours Louxor à Assouan

  • Dahabeya Saray el Nil – 6 jours Louxor à Assouan

 

Croisière Dahabeya Sekhmet

8 jours / 7 nuits – Louxor à Louxor

 

Notre "dahabeya originale", récemment rénovée, idéale pour les amateurs de confort et d’élégance.
Départ tous les samedis.
À partir de 1 290 € avec vols
Vallée des Rois, Kom Ombo, soirée nubienne, baignade dans le Nil
Pré-tour au Caire ou extension à Hurghada en option

> En savoir plus

Croisière Dahabeya Papyrus

8 jours / 7 nuits – Louxor à Louxor

 

Un bateau à la déco contemporaine et chaleureuse, tout juste mis à l’eau.
Départ tous les samedis.
À partir de 1 490 € avec vols
12 cabines, ambiance douce, jacuzzi et pont soleil
Activités locales et guide égyptologue inclus

> En savoir plus

Croisière Dahabeya Yalla Bina

6 ou 8 jours – Louxor à Assouan

 

Un bateau cosy à taille humaine (10 cabines), inspiré par Sœur Emmanuelle.
Départ tous les samedis.
À partir de 1 990 € avec vols
Formule 5 ou 7 nuits, idéale à privatiser entre amis ou en famille
Extensions vers Abou Simbel disponibles

> En savoir plus

Croisière Dahabeya Saray el Nil

6 jours – Louxor à Assouan

 

L’authenticité d’un bateau historique datant de 1882.
Départ tous les dimanches.
À partir de 1 290 € sans vols
Ambiance coloniale façon Agatha Christie, pour une immersion totale
Programme dense avec temple de Philae et Kom Ombo

> En savoir plus

 

 

 

 

 

La brochure Egypte - Voiles sur le Nil 2026

 

 

L'Égypte, pays mythique de l'Afrique du Nord-Est, est une destination fascinante pour les amateurs d'histoire, de culture et de paysages variés. Bordée par la mer Méditerranée au nord et la mer Rouge à l'est, l'Égypte est célèbre pour ses pyramides, ses temples anciens, et le majestueux Nil. Ce pays offre une expérience de voyage riche et diversifiée, où chaque coin de rue raconte une histoire millénaire. Des vastes déserts aux oasis verdoyantes, des plages paradisiaques aux villes vibrantes, l'Égypte promet une aventure inoubliable pour tous les types de voyageurs.

Nous vous conseillons l'Égypte si…

L'Égypte est une destination idéale pour ceux qui sont passionnés par l'histoire et l'archéologie, avec ses monuments emblématiques tels que les pyramides de Gizeh, le Sphinx, et les temples de Louxor et de Karnak. Les amateurs de culture apprécieront le patrimoine riche et diversifié du pays, des musées impressionnants du Caire aux marchés traditionnels de Khan el-Khalili. Les amoureux de la nature et des activités de plein air trouveront leur bonheur dans les oasis du désert, les sites de plongée de la mer Rouge, et les croisières sur le Nil. Enfin, l'Égypte est parfaite pour les familles, les couples en lune de miel, et les voyageurs solitaires en quête de découverte et d'aventure.

Quand Partir en Égypte

Le meilleur moment pour visiter l'Égypte est durant les saisons intermédiaires, de mars à mai et de septembre à novembre, lorsque les températures sont plus clémentes et les sites touristiques moins encombrés. Les mois d'hiver, de décembre à février, offrent également des températures agréables, bien que les soirées puissent être fraîches, surtout dans le désert. Évitez les mois d'été, de juin à août, où la chaleur peut être étouffante, surtout dans les régions désertiques et les sites archéologiques.

Pourquoi Choisir l'Égypte

Choisir l'Égypte pour vos vacances, c'est plonger dans une histoire fascinante qui remonte à plus de cinq millénaires. Le pays est un véritable musée à ciel ouvert, offrant une multitude de sites historiques et culturels à explorer. Outre ses trésors anciens, l'Égypte propose des paysages variés, des plages immaculées de la mer Rouge aux dunes spectaculaires du désert occidental. La diversité de la faune et de la flore, la richesse de la culture locale, et la chaleur de l'accueil égyptien font de ce pays une destination unique. De plus, l'Égypte offre un excellent rapport qualité-prix, avec des options d'hébergement et de restauration pour tous les budgets.

Ce qu'il Faut Voir et Faire en Égypte

L'Égypte regorge de sites incontournables à découvrir. Commencez par Le Caire, la capitale effervescente, où vous pourrez visiter le musée égyptien, la citadelle de Saladin, et le quartier copte. À Gizeh, émerveillez-vous devant les pyramides et le Sphinx. Explorez les temples grandioses de Louxor et de Karnak, et ne manquez pas la Vallée des Rois et des Reines, où reposent les pharaons et leurs trésors. Pour une expérience unique, faites une croisière sur le Nil entre Louxor et Assouan, en passant par Edfou et Kom Ombo. Détendez-vous sur les plages de Hurghada ou de Sharm el-Sheikh, célèbres pour leurs sites de plongée exceptionnels. Enfin, aventurez-vous dans le désert pour découvrir les oasis de Siwa et Bahariya, et les paysages surréalistes du désert blanc.

Ce qu'il faut Manger en Égypte

La cuisine égyptienne est une délicieuse fusion de saveurs méditerranéennes et moyen-orientales. Parmi les plats incontournables, essayez le koshari, un mélange de riz, pâtes, lentilles, pois chiches et oignons frits, le tout nappé d'une sauce tomate épicée. Le foul medames, une purée de fèves servie avec de l'huile d'olive, du citron et des épices, est un autre plat traditionnel. Ne manquez pas de goûter aux grillades de kebab et kofta, souvent accompagnées de pain pita et de salades fraîches. Les desserts égyptiens, comme le baklava et le basbousa, sont riches et sucrés, parfaits pour terminer un repas en beauté. Accompagnez vos repas de thé à la menthe ou de jus de fruits frais pour une expérience culinaire authentique.

Combien de Temps Partir en Égypte

Pour une première visite en Égypte, deux semaines sont idéales pour explorer les principales attractions du pays sans se presser. Ce délai vous permettra de passer quelques jours au Caire pour découvrir ses trésors, de vous rendre à Gizeh pour voir les pyramides, de voyager à Louxor et Assouan pour explorer les temples et les tombeaux, et de profiter des plages de la mer Rouge pour quelques jours de détente. Si vous avez plus de temps, envisagez de visiter les oasis du désert ou d'explorer les régions moins touristiques comme Alexandrie ou le désert blanc.

Quelques Mots et Expressions Utiles en Égypte

Il est toujours apprécié de connaître quelques mots de la langue locale lors de vos voyages. En Égypte, l'arabe est la langue officielle. Voici quelques expressions de base qui pourraient vous être utiles :

  • Bonjour : Salam
  • Au revoir : Ma'a as-salama
  • Merci : Shukran
  • S'il vous plaît : Min fadlak (pour un homme) / Min fadlik (pour une femme)
  • Oui : Na'am
  • Non : La
  • Combien ça coûte ? : Kam tha-manoh ?
  • Excusez-moi : Afwan

Quel Programme pour un Voyage de Deux Semaines en Égypte

Pour un séjour de deux semaines en Égypte, voici un itinéraire suggéré :

Jours 1-3 : Le Caire

  • Visitez le musée égyptien
  • Explorez la citadelle de Saladin et la mosquée Mohamed Ali
  • Flânez dans le marché de Khan el-Khalili

Jours 4-5 : Gizeh

  • Admirez les pyramides de Gizeh et le Sphinx
  • Visitez Saqqarah et la pyramide à degrés

Jours 6-9 : Louxor

  • Explorez les temples de Karnak et Louxor
  • Visitez la Vallée des Rois et des Reines
  • Découvrez les colosses de Memnon

Jours 10-12 : Assouan

  • Visitez le temple de Philae
  • Faites une excursion à Abu Simbel
  • Promenez-vous sur le Nil en felouque

Jours 13-14 : Hurghada ou Sharm el-Sheikh

  • Profitez des plages et des activités nautiques
  • Faites de la plongée ou du snorkeling dans la mer Rouge

 

Comment Voyager en Égypte en Famille

L'Égypte est une destination accueillante pour les familles, avec de nombreuses activités adaptées aux enfants. Les visites des pyramides et des temples captiveront l'imagination des plus jeunes, tandis que les croisières sur le Nil offriront des moments de détente en famille. Les stations balnéaires de la mer Rouge sont parfaites pour des vacances familiales, avec des plages sûres, des hôtels adaptés aux enfants et une multitude d'activités nautiques. Assurez-vous de planifier des journées de repos entre les visites pour éviter la fatigue, et choisissez des hébergements offrant des commodités pour les familles, comme des piscines et des clubs pour enfants.

Où Faire son Voyage de Noces en Égypte

Pour un voyage de noces inoubliable, l'Égypte offre plusieurs options romantiques. Les croisières sur le Nil sont idéales pour un séjour luxueux et relaxant, avec des arrêts dans des sites historiques fascinants. Les plages de la mer Rouge, comme celles de Sharm el-Sheikh et Hurghada, offrent des cadres idylliques pour les jeunes mariés, avec des complexes hôteliers de luxe, des dîners romantiques au bord de l'eau et des activités de plongée. Pour une expérience unique, envisagez de passer quelques jours dans une oasis du désert, comme Siwa, où vous pourrez profiter de bains thermaux et de couchers de soleil spectaculaires.

Comment Faire de l'Écotourisme en Égypte

L'écotourisme prend de l'ampleur en Égypte, avec des initiatives visant à protéger l'environnement et à promouvoir le tourisme durable. Pour une expérience écologique, explorez les réserves naturelles comme le parc national de Ras Mohammed, réputé pour ses récifs coralliens et sa biodiversité marine. Participez à des excursions guidées respectueuses de l'environnement, telles que des safaris dans le désert avec des guides locaux utilisant des méthodes durables. De nombreux hôtels et lodges dans des régions comme Siwa et le désert blanc adoptent des pratiques écologiques, comme l'utilisation de l'énergie solaire et la gestion responsable de l'eau.

Quel Budget Prévoir pour Aller en Égypte

L'Égypte est une destination relativement abordable, avec des options pour tous les budgets. Le coût de la vie y est moins élevé qu'en Europe ou en Amérique du Nord. Pour un séjour confortablecon, prévoyez un budget moyen de 50 à 100 euros par jour, incluant l'hébergement, les repas et les activités. Les hôtels de luxe peuvent coûter entre 100 et 300 euros par nuit, tandis que les auberges et les hôtels économiques offrent des chambres à partir de 20 euros par nuit. Les repas dans des restaurants locaux sont abordables, avec des plats coûtant entre 5 et 15 euros. Les visites guidées et les excursions varient en fonction de la durée et du type d'activité, mais il est possible de trouver des options à partir de 20 euros par personne.

Comment Aller en Égypte

L'Égypte est bien desservie par des vols internationaux, avec des aéroports principaux au Caire, à Hurghada, à Sharm el-Sheikh, et à Louxor. De nombreuses compagnies aériennes offrent des vols directs depuis l'Europe, l'Asie et l'Amérique du Nord. Une fois sur place, vous pouvez vous déplacer en avion, en train, en bus ou en voiture. Les vols domestiques sont rapides et relativement abordables, tandis que les trains offrent une manière pittoresque de voyager entre les principales villes. Les bus sont une option économique, bien que les trajets puissent être longs. Louer une voiture est possible, mais soyez prêt à naviguer dans la circulation parfois chaotique des villes égyptiennes.

Faut-il un Visa/Passeport pour Partir en Égypte ?

Pour entrer en Égypte, un passeport valide est requis. La plupart des visiteurs doivent également obtenir un visa. Les citoyens de nombreux pays peuvent obtenir un visa touristique à l'arrivée dans les aéroports égyptiens pour une durée maximale de 30 jours. Il est également possible de demander un visa en ligne avant le départ via le site officiel du gouvernement égyptien. Assurez-vous de vérifier les exigences spécifiques de votre pays de résidence avant de voyager.

Quels Vaccins pour l'Égypte ?

Il est recommandé de vérifier les vaccinations nécessaires avant de voyager en Égypte. Les vaccinations de routine, telles que celles contre la rougeole, les oreillons, la rubéole (ROR), la diphtérie-tétanos-coqueluche, la varicelle, la polio et la grippe, doivent être à jour. Les vaccins recommandés pour les voyageurs en Égypte incluent ceux contre l'hépatite A et B, la typhoïde, et la rage, en fonction de la durée et du type de voyage prévu. Il est également conseillé de prendre des précautions contre les piqûres de moustiques, car des maladies telles que le paludisme peuvent être présentes dans certaines régions.

Quelques Informations Pratiques en Plus sur l'Égypte

L'Égypte est un pays à majorité musulmane, et il est important de respecter les coutumes locales, notamment en matière de tenue vestimentaire. Habillez-vous modestement, surtout lors de la visite des lieux religieux. Il est recommandé de boire de l'eau en bouteille et d'éviter l'eau du robinet. Les prises de courant en Égypte sont de type C et F, avec une tension de 220 V et une fréquence de 50 Hz. Il est donc conseillé de vérifier si vous avez besoin d'un adaptateur pour vos appareils électroniques. Enfin, n'oubliez pas de négocier les prix dans les marchés et les boutiques, car le marchandage fait partie de la culture locale.

 

En conclusion, l'Égypte est une destination de voyage qui combine histoire, culture, aventure et détente. Que vous soyez un passionné d'archéologie, un amateur de plage, un aventurier dans l'âme ou un voyageur en quête de nouvelles expériences, ce pays fascinant a de quoi combler toutes vos attentes. Profitez de votre séjour pour découvrir les trésors cachés de l'Égypte et créer des souvenirs inoubliables.

 

Aucun résultat ne correspond à la recherche

Espagne : les incontournables à goûter

Sous les étoiles à Merzouga au Maroc

Voyage en Patagonie : entre Argentine et Chili

Italie du Sud : la dolce vita

Inspirations de voyages autour du café

Safari en Tanzanie : Serengeti, Ngorongoro et Zanzibar

Sri Lanka : Les plantations de thé de Nuwara Eliya

Liverpool : sur les traces des Beatles

Voyage pour CSE en Norvège

6 célébrations incontournables dans le monde

La Sardaigne du Nord en villas de luxe

Albanie : le joyau des Balkans à découvrir absolument

Croatie et cinéma : les plus beaux lieux de tournage à découvrir

Les plus belles plages d’Espagne

Grèce : 15 lieux incontournables

Ces femmes inspirantes dans le monde

Egypte | Croisières sur le Nil en Dahabeya

Carnaval en République Dominicaine : Le guide complet

Guide des Parc d'attractions au Japon : Disney, Mario et Ghibli

Les incontournables de la gastronomie canadienne

Plongée en Indonésie : Le guide complet

Songkran en Thaïlande : vivre le Nouvel An thaïlandais

Les hanoks, reflets d'une philosophie coréenne

Voyage de noces au Mexique, écrire des souvenirs qui durent

Le Mexique, une terre qui se raconte en voyage

Les plus beaux marchés de Noël

Les meilleures destinations pour les voyageuses solo

Les meilleures villes du monde pour les foodies

Les 10 pays les plus accueillants au monde

Halloween : Des traditions fascinantes à travers le monde

Dahabeya Saray El Nil

Dahabeya Yalla Bina

Dahabeya Papyrus

Dahabeya Sekhmet

Où partir en Mars

Où partir en Février

Où partir en Janvier

Où partir en Décembre

Où partir en Novembre

Où partir en Octobre

Où partir en septembre

Où partir en août

Où partir en Juillet

Où partir en Juin

Où partir en Mai

Où partir en Avril

Les 10 sites incontournables à découvrir en Égypte

Pourquoi partir en Egypte cette année ?

Les 10 destinations les plus populaires cette année

 

Ne manquez plus aucune inspiration voyage

Rejoignez la communauté Samcea Voyages et recevez chaque mois des idées d’évasion, nos bons plans exclusifs, des conseils de pros et nos prochaines offres réservées à nos abonnés.

 

Trouvez votre prochain voyage